122 S Oak Pointe Dr, Seneca, SC 29672
Toggle Navigation
Images
Videos
Floor Plans
Map
122 S Oak Pointe Dr
Seneca, SC 29672
Scroll to Content
Images
Slideshow
Photo Grid
Hide
Previous
Next
Show more
Videos
122 S Oak Pointe Dr, Seneca, SC
122 S Oak Pointe Drive, Seneca, SC
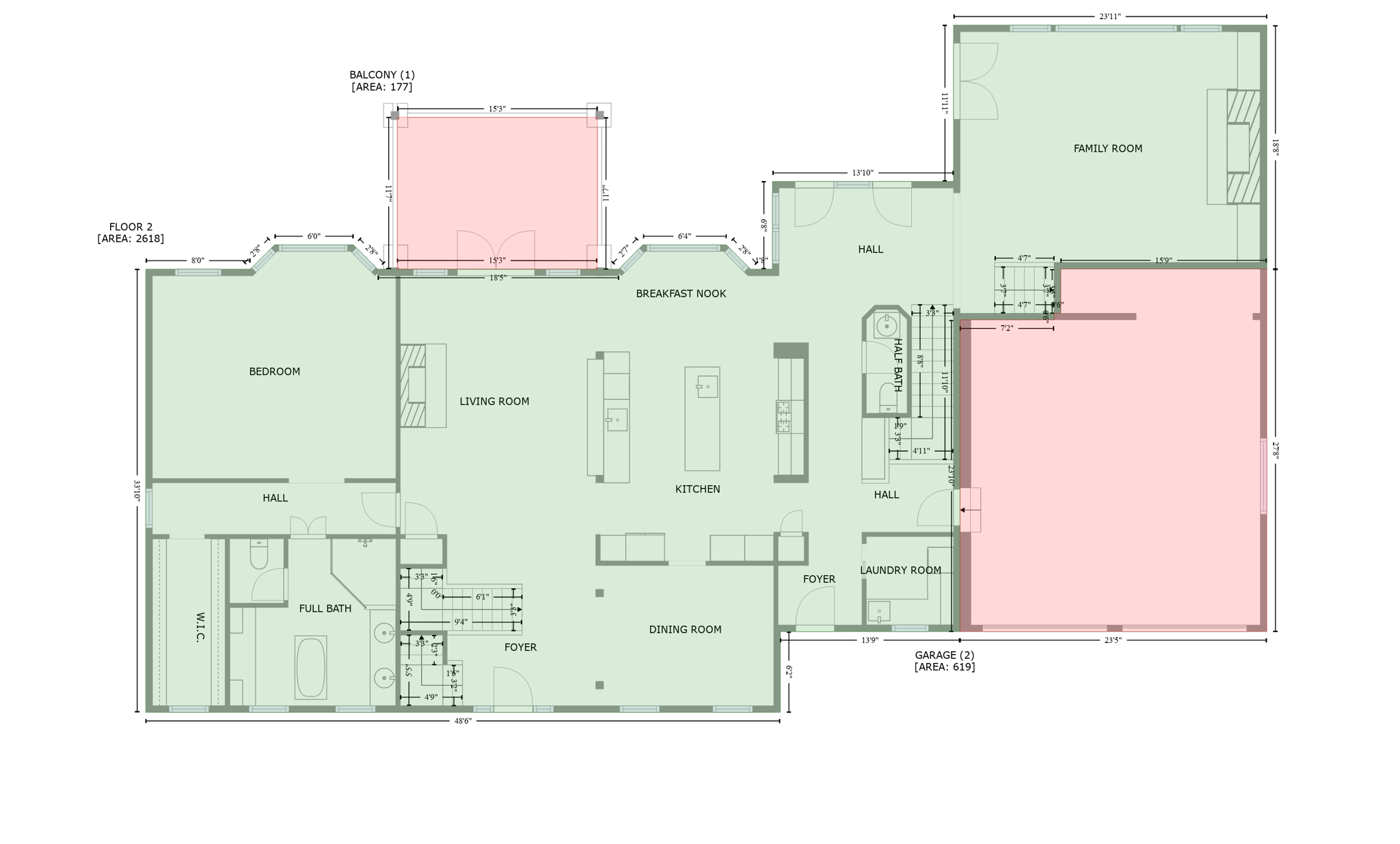
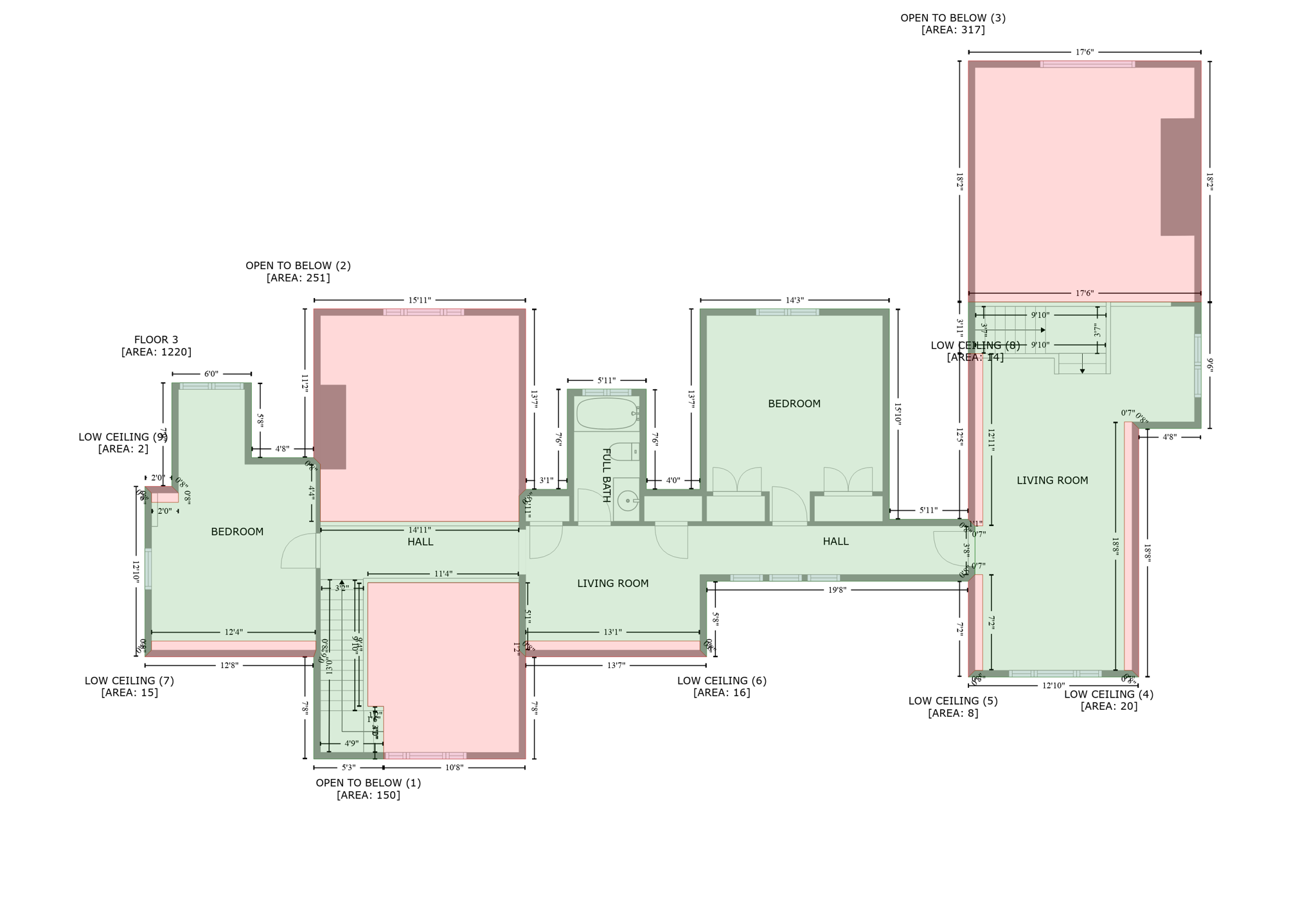
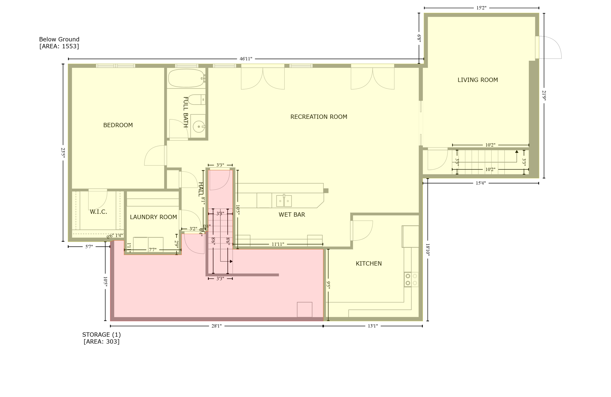
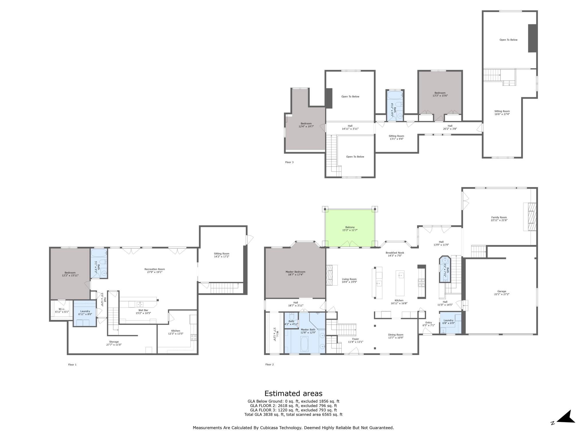
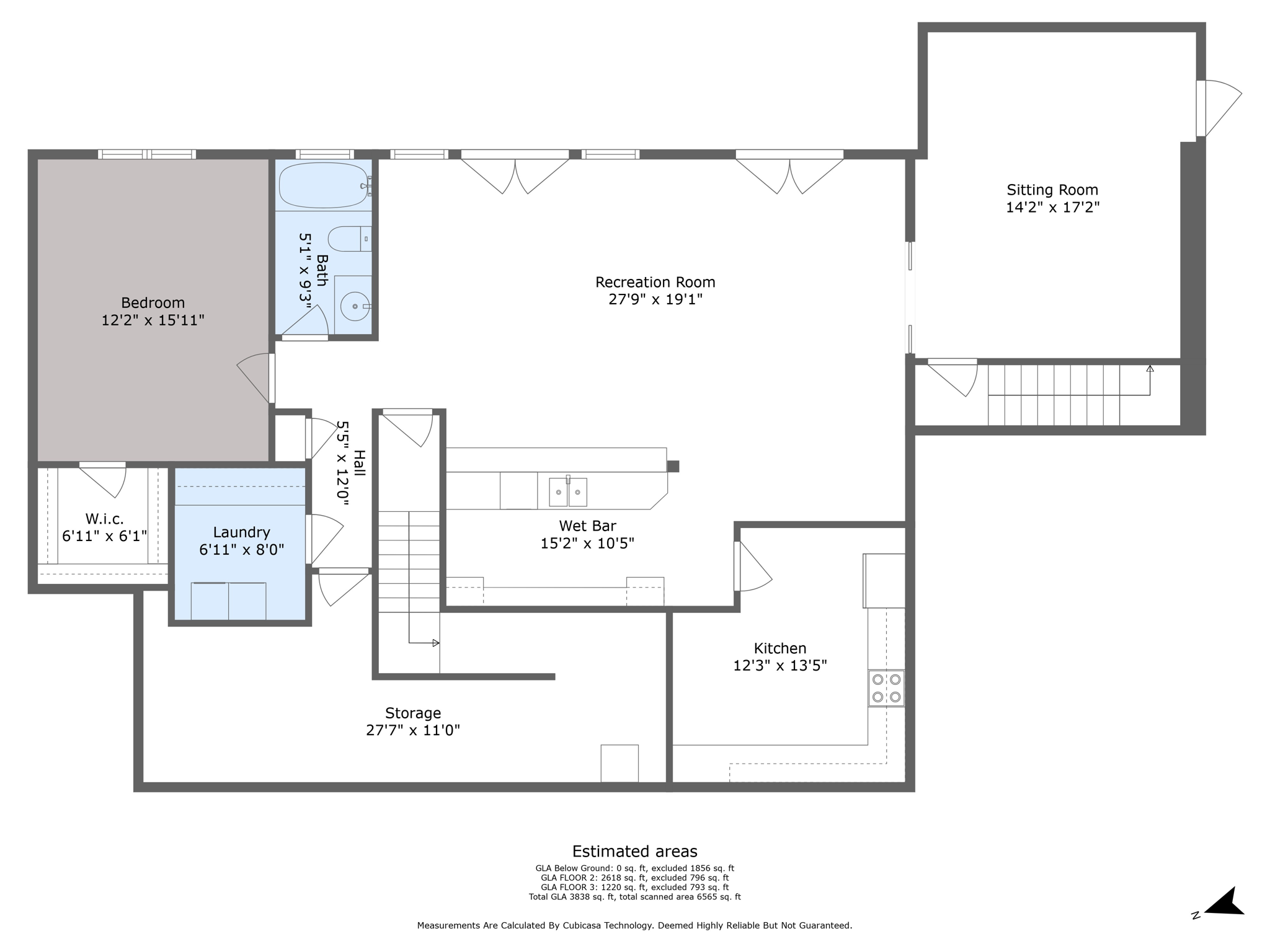
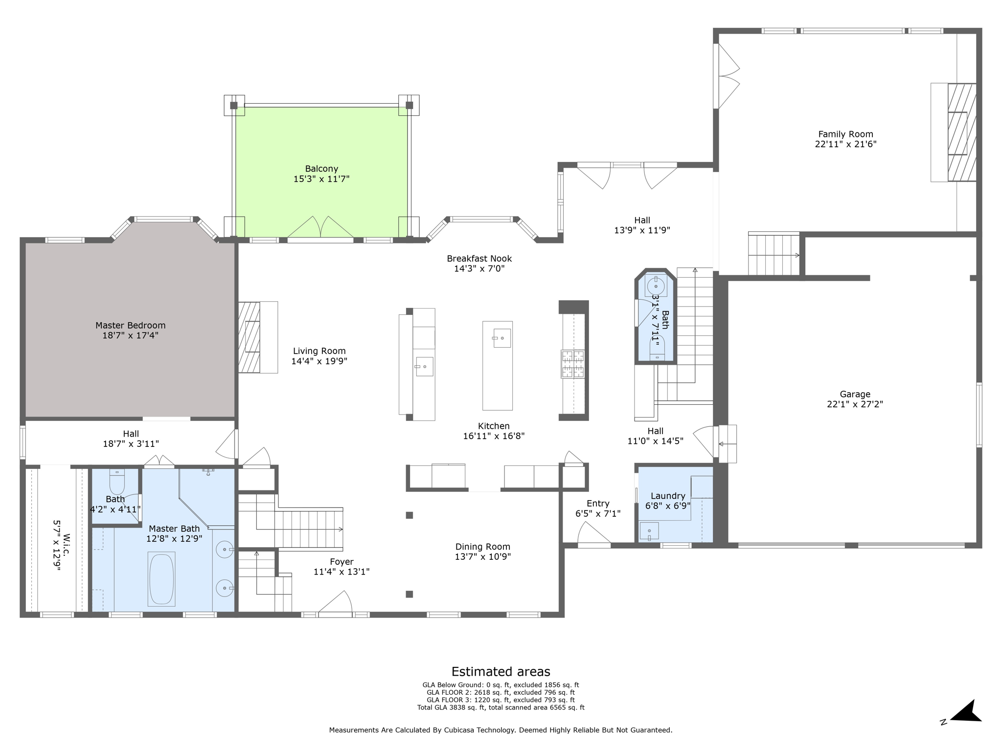
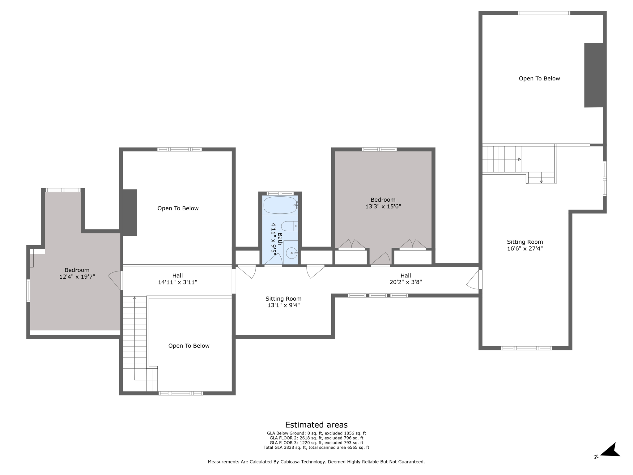
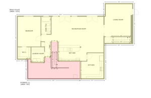
Floor Plans
Slideshow
Photo Grid
Hide
Previous
Next